Bad Frankenhausen kann bauen
Donnerstag, 14. Februar 2013, 13:51 Uhr
Kurstadt erhielt Zuwendungsbescheid über 1,236 Mio. € für einen weiteren Bauabschnitt in der Kyffhäuser-Therme. Dazu erreichte kn aus der Stadtverwaltung folgende Meldung.
Für das staatlich anerkannte Sole-Heilbad Bad Frankenhausen können weitere wichtige zukunftsweisende Investitionen umgesetzt werden.
Denn die Kurstadt erhielt in diesen Tagen vom Freistaat Thüringen einen Fördermittelbescheid für den 4. Bauabschnitt in der Kyffhäuser-Therme.
Die Summe des Zuwendungsbescheides ist beachtlich: 1.236.792,-€ erhält die Stadt vom Freistaat Thüringen aus dem Förderprogramm Verbesserung der regionalen Wirtschaftsstruktur an Fördermitteln. Diese Summe entspricht dem Höchstfördersatz von 90 Prozent. Denn die Gesamtinvestition für die Erhöhung der Attraktivität der Kyffhäuser-Therme belaufen sich auf 1.414.000 € netto, die förderfähige Kosten belaufen sich auf 1.374.214 € netto.
Wir sind sehr erfreut über diesen Fördermittelbescheid und können so wegweisende Investitionen in unserer Kyffhäuser-Therme umsetzen. Damit stärken wir insgesamt das staatlich anerkannte Sole-Heilbad Bad Frankenhausen. Wir sind als Kurstadt auf dem richtigen Weg. Dass dies auch das Thüringer Wirtschaftsministerium und damit der Freistaat Thüringen ebenso einschätzt, beweist die erneute Förderung, so der Bürgermeister der Kurstadt Bad Frankenhausen Matthias Strejc (SPD).
Denn es ist nicht selbstverständlich, dass der Freistaat Thüringen im großen Umfang innerhalb kürzester Zeit Fördermittel für einen Kurort zur Verfügung stellt. Es ist ein Vertrauensbeweis in unser Stadt, in die Kyffhäuser-Region. Und wir danken dem Thüringer Wirtschaftsministerium sehr, für diese erneute Förderung, so der Bürgermeister weiter.
Erst im Dezember 2011 erhielt die Kurstadt einen Zuwendungsbescheid in Höhe von 5,519 Mio. € für den 4. Bauabschnitt Kurpark (Erweiterung des Kurparkes mit integriertem Solewasser-Vitalpark) und im November 2008 förderte der Freistaat den 3. Bauabschnitt in der Kyffhäuser-Therme in Höhe von 1,787 Mio. €.
Im Rahmen des jetzigen 4. Bauabschnittes in der Kyffhäuser-Therme werden drei Maßnahmen umgesetzt:
1. Neubau der Großwasserrutsche
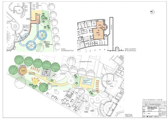
2. Erweiterung des Saunagartens (Schaffung zusätzlicher Ruhe-Flächen, Neubau großes Kaltbecken, Bau einer kleinen Gradierwand)
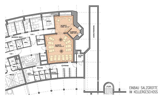
3. Umbau der bestehenden Grotte zur Toten-Meer-Salz-Grotte
Alle Maßnahmen werden in diesem Jahr begonnen. Es wird aber zu keiner zusätzlichen Schließzeit der Kyffhäuser-Therme kommen.
Die Kyffhäuser-Therme kann auf eine sehr positive Entwicklung zurück blicken. Im letzten kamen mit 131.000 Besuchern so viele Besucher in die Therme, wie selten zuvor. Damit war im Jahr 2012 die Kyffhäuser-Therme das touristische Ziel Nummer eins in der Kyffhäuser Region. Das Betriebsergebnis konnte verbessert werden und auch im Therapiebereich verzeichnete die Kur GmbH deutliche Zuwächse.
Insgesamt plant die Stadt Bad Frankenhausen im Jahr 2013 und 2014 Investitionen von insgesamt mehr als 9 Mio. Euro. Die Stadt erhielt in der letzten Woche die Genehmigung des Doppelhaushaltes für die kommenden zwei Jahre und kann damit die zahlreichen investiven Projekte umsetzen. Die Stadt Bad Frankenhausen ist einer der wenigen Kommunen in der Kyffhäuser-Region, die einen ausgeglichen Haushalt aufstellen konnte und zudem in Größenordnungen Investitionen durchführen kann.
Das Haushaltsjahr 2012 schloss die Stadt Bad Frankenhausen mit einem Überschuss ab und konnte insgesamt über 308.000 € der Rücklage zusätzlich zuführen. Damit verfügt die Stadt verfügt über eine Rücklage von über 2,5 Mio. €.
Autor: khhFür das staatlich anerkannte Sole-Heilbad Bad Frankenhausen können weitere wichtige zukunftsweisende Investitionen umgesetzt werden.
Denn die Kurstadt erhielt in diesen Tagen vom Freistaat Thüringen einen Fördermittelbescheid für den 4. Bauabschnitt in der Kyffhäuser-Therme.
Die Summe des Zuwendungsbescheides ist beachtlich: 1.236.792,-€ erhält die Stadt vom Freistaat Thüringen aus dem Förderprogramm Verbesserung der regionalen Wirtschaftsstruktur an Fördermitteln. Diese Summe entspricht dem Höchstfördersatz von 90 Prozent. Denn die Gesamtinvestition für die Erhöhung der Attraktivität der Kyffhäuser-Therme belaufen sich auf 1.414.000 € netto, die förderfähige Kosten belaufen sich auf 1.374.214 € netto.
Wir sind sehr erfreut über diesen Fördermittelbescheid und können so wegweisende Investitionen in unserer Kyffhäuser-Therme umsetzen. Damit stärken wir insgesamt das staatlich anerkannte Sole-Heilbad Bad Frankenhausen. Wir sind als Kurstadt auf dem richtigen Weg. Dass dies auch das Thüringer Wirtschaftsministerium und damit der Freistaat Thüringen ebenso einschätzt, beweist die erneute Förderung, so der Bürgermeister der Kurstadt Bad Frankenhausen Matthias Strejc (SPD).
Denn es ist nicht selbstverständlich, dass der Freistaat Thüringen im großen Umfang innerhalb kürzester Zeit Fördermittel für einen Kurort zur Verfügung stellt. Es ist ein Vertrauensbeweis in unser Stadt, in die Kyffhäuser-Region. Und wir danken dem Thüringer Wirtschaftsministerium sehr, für diese erneute Förderung, so der Bürgermeister weiter.
Erst im Dezember 2011 erhielt die Kurstadt einen Zuwendungsbescheid in Höhe von 5,519 Mio. € für den 4. Bauabschnitt Kurpark (Erweiterung des Kurparkes mit integriertem Solewasser-Vitalpark) und im November 2008 förderte der Freistaat den 3. Bauabschnitt in der Kyffhäuser-Therme in Höhe von 1,787 Mio. €.
Im Rahmen des jetzigen 4. Bauabschnittes in der Kyffhäuser-Therme werden drei Maßnahmen umgesetzt:
1. Neubau der Großwasserrutsche
2. Erweiterung des Saunagartens (Schaffung zusätzlicher Ruhe-Flächen, Neubau großes Kaltbecken, Bau einer kleinen Gradierwand)
3. Umbau der bestehenden Grotte zur Toten-Meer-Salz-Grotte
Alle Maßnahmen werden in diesem Jahr begonnen. Es wird aber zu keiner zusätzlichen Schließzeit der Kyffhäuser-Therme kommen.
Die Kyffhäuser-Therme kann auf eine sehr positive Entwicklung zurück blicken. Im letzten kamen mit 131.000 Besuchern so viele Besucher in die Therme, wie selten zuvor. Damit war im Jahr 2012 die Kyffhäuser-Therme das touristische Ziel Nummer eins in der Kyffhäuser Region. Das Betriebsergebnis konnte verbessert werden und auch im Therapiebereich verzeichnete die Kur GmbH deutliche Zuwächse.
Insgesamt plant die Stadt Bad Frankenhausen im Jahr 2013 und 2014 Investitionen von insgesamt mehr als 9 Mio. Euro. Die Stadt erhielt in der letzten Woche die Genehmigung des Doppelhaushaltes für die kommenden zwei Jahre und kann damit die zahlreichen investiven Projekte umsetzen. Die Stadt Bad Frankenhausen ist einer der wenigen Kommunen in der Kyffhäuser-Region, die einen ausgeglichen Haushalt aufstellen konnte und zudem in Größenordnungen Investitionen durchführen kann.
Das Haushaltsjahr 2012 schloss die Stadt Bad Frankenhausen mit einem Überschuss ab und konnte insgesamt über 308.000 € der Rücklage zusätzlich zuführen. Damit verfügt die Stadt verfügt über eine Rücklage von über 2,5 Mio. €.




